Forest
house
If you enjoy being in the open space and like the calmness of the countryside, you will definitely have a crush on this house.
Concept
The idea of a perfect house isn’t that impracticable as you may think! Our concept provides spacious rooms and minimalistic style. Paired with the large outdoor space and cozy terraces, the house becomes a great place to hanging out with friends or spending time with family.
Total area:1000 m
Floors: 2
Living rooms:6
Construction period:8 months
Date:2016
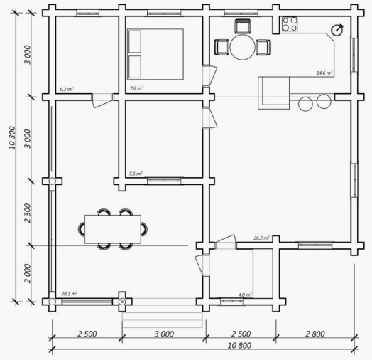
Plan

2
1
4
3
5
6